Keine Lust auf 08/15 Wohnung? Willkommen in den Wohnungen von GCP!
Haben Sie Fragen oder Interesse an dem Objekt?
Kontaktieren Sie Nicole Möritz für Fragen und Besichtigungen.Kosten
-
-
Nebenkosten48,00 €
-
Heizkosten55,00 €
-
396,00 €
-
Auf Anfrage
Weitere Informationen
-
Objekt ID5132/00485/003/0008
-
Baujahr1974
-
ZustandGepflegt
-
Wesentliche EnergieträgerBlock
-
Gesetzliche Pflichtangaben EnergieausweisLiegt für das Gebäude vor
-
EnergieausweistypVerbrauchsausweis
-
Energieverbrauchskennwert89.50 kWh/(m2a)
Objektbeschreibung
Das 4-stöckige Wohnhaus wurde 1974 erbaut - In der 4. Etage liegt Ihre neue Wohnung.
Lebendige Nachbarschaften und Service vor Ort: Um die optimale Pflege der Anlage kümmert sich unser Hausmeisterservice.“
Sichern Sie sich Ihren privaten Parkplatz!
In vielen unserer Objekte bieten wir Ihnen die Möglichkeit, private Parkplätze anzumieten.
Jetzt anfragen und bequem parken – schnell, einfach und stressfrei! Sprechen Sie uns an!
Ausstattung
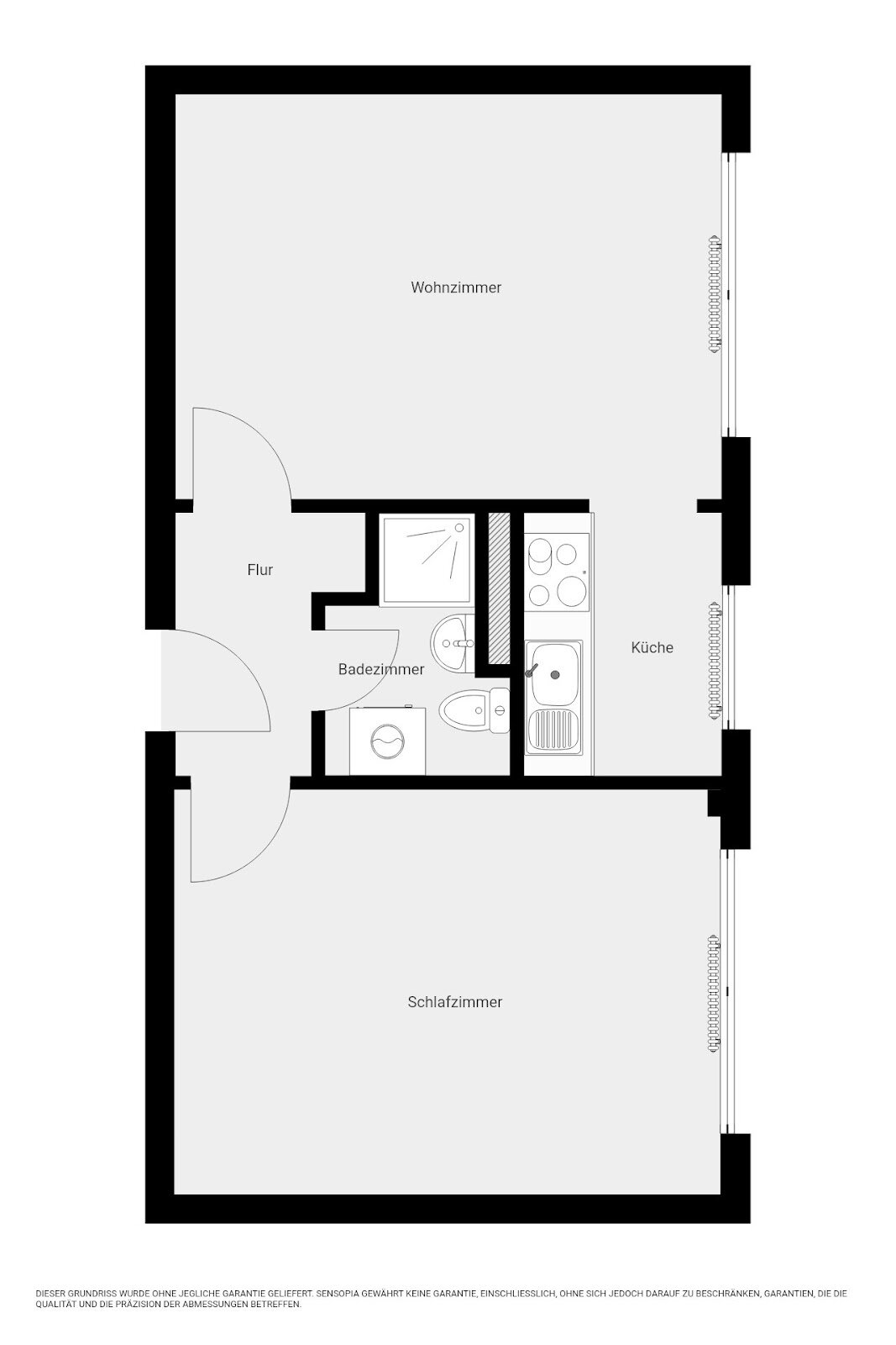
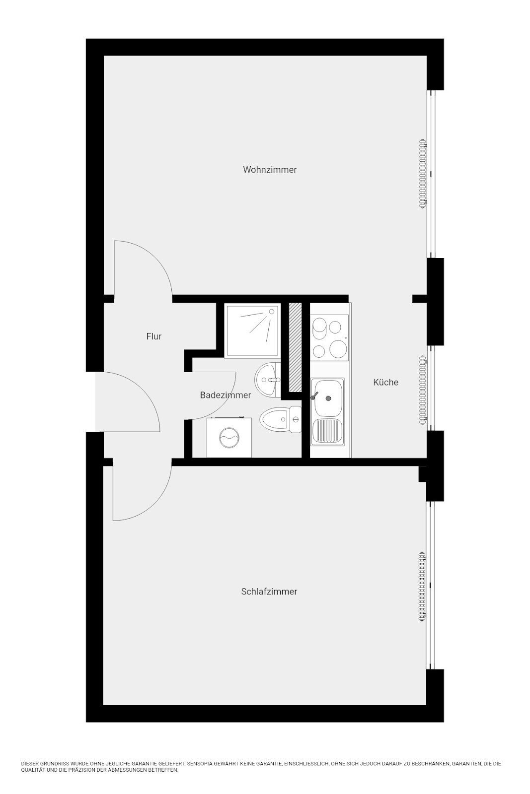
Die 2-Zimmer-Wohnung verteilt sich auf ca. 42 m²
- PVC- Bodenbelag und Raufasertapete in den Wohnräumen
- PVC Boden- und weiße Wandfliesen in der Küche
- Weiße Boden- und weiße Wandfliesen im Bad
- Bad mit Dusche
- Haustiere nach Vereinbarung
- Keller
- Hausmeisterservice
- 24/7 für Sie erreichbar - auch im Notfall
- Moderner Mieterservice über WhatsApp, Telefon, E-Mail und die GCP App: Kontakte, Unterlagen und Anliegen bequem online verwalten
Lage
Willkommen in Halle/Saale - im Stadtteil Südstadt.
In einer ruhigen Nebenstraße liegt die gepflegte Wohnanlage.
Im Umkreis von wenigen hunderten Metern befinden sich Supermärkte und Einkaufsmöglichkeiten des täglichen Bedarfs. Für die Kleinen gibt es Schulen und Kindergärten, die zu Fuß gut erreichbar sind.
Nahegelegene Haltestellen des öffentlichen Nahverkehrs gewährleisten eine gute Anbindung.
Für die Freizeitgestaltung dienen Parks und Grünanlagen in der Nähe, sowie Sportvereine in der Umgebung.
Sonstiges
Alle Informationen zur Datennutzung und Datenschutzrechten durch Grand City Property Ltd – Zweigniederlassung Deutschland finden Sie unter: grandcityproperty.de/datenschutz.
Wichtige Hinweise:
- Bitte senden Sie uns keine vertraulichen personenbezogenen Dokumente (z. B. Gehaltsabrechnungen) vor der Besichtigung zu. Sollten Sie dies dennoch tun, werden diese Dateien umgehend gelöscht.
- Der Energieausweis kann bei der Besichtigung vorgelegt werden (ausgenommen Stellplätze/Garagen).
- Die in der Anzeige verwendeten Fotos können Beispielfotos oder KI-generierte Visualisierungen (Kennzeichnung mit „virtually staged“) sein, die der besseren Veranschaulichung der Immobilie dienen und von den tatsächlichen Gegebenheiten abweichen können.
- Sämtliche Daten in diesem Exposé, einschließlich Bilder, Grundrisse und sonstige Beschreibungen wie auch Grundrissgrafiken mit Maßangaben oder Einrichtungen, dienen ausschließlich der allgemeinen Information und stellen keine verbindlichen Zusicherungen dar. Die Daten sind so gründlich wie möglich angegeben, dennoch lassen sich Fehler nicht ausschließen. Alle Angaben im Exposé sind daher unverbindlich und etwaige Änderungen vorbehalten. Wir übernehmen daher keine Gewähr für die Richtigkeit, Vollständigkeit und Aktualität der bereitgestellten Informationen. Maßgeblich sind allein die Vereinbarungen des zu schließenden Mietvertrages. Eine Haftung für fahrlässige Fehler oder Abweichungen der Angaben wird – soweit gesetzlich zulässig – ausgeschlossen.