„Balkonien wartet – 3 Zimmer mit Balkon und Badewanne in der 4. Etage"
Haben Sie Fragen oder Interesse an dem Objekt?
Kontaktieren Sie Juliane Hering für Fragen und Besichtigungen.Kosten
-
-
Nebenkosten109,00 €
-
Heizkosten94,00 €
-
625,00 €
-
844,00 €
Weitere Informationen
-
Objekt ID5101/01171/012/0199
-
Baujahr1981
-
ZustandGepflegt
-
Wesentliche EnergieträgerFernwärme
-
Gesetzliche Pflichtangaben EnergieausweisLiegt für das Gebäude vor
-
EnergieausweistypVerbrauchsausweis
-
Energieverbrauchskennwert81.00 kWh/(m2a)
Objektbeschreibung
Das 5-stöckige Wohnhaus wurde 1981 erbaut - In der 4. Etage liegt Ihre neue Wohnung.
Lebendige Nachbarschaften und Service vor Ort: Um die optimale Pflege der Anlage kümmert sich unser Hausmeisterservice.
Sichern Sie sich Ihren privaten Parkplatz!
In vielen unserer Objekte bieten wir Ihnen die Möglichkeit, private Parkplätze anzumieten.
Jetzt anfragen und bequem parken – schnell, einfach und stressfrei! Sprechen Sie uns an!
Ausstattung
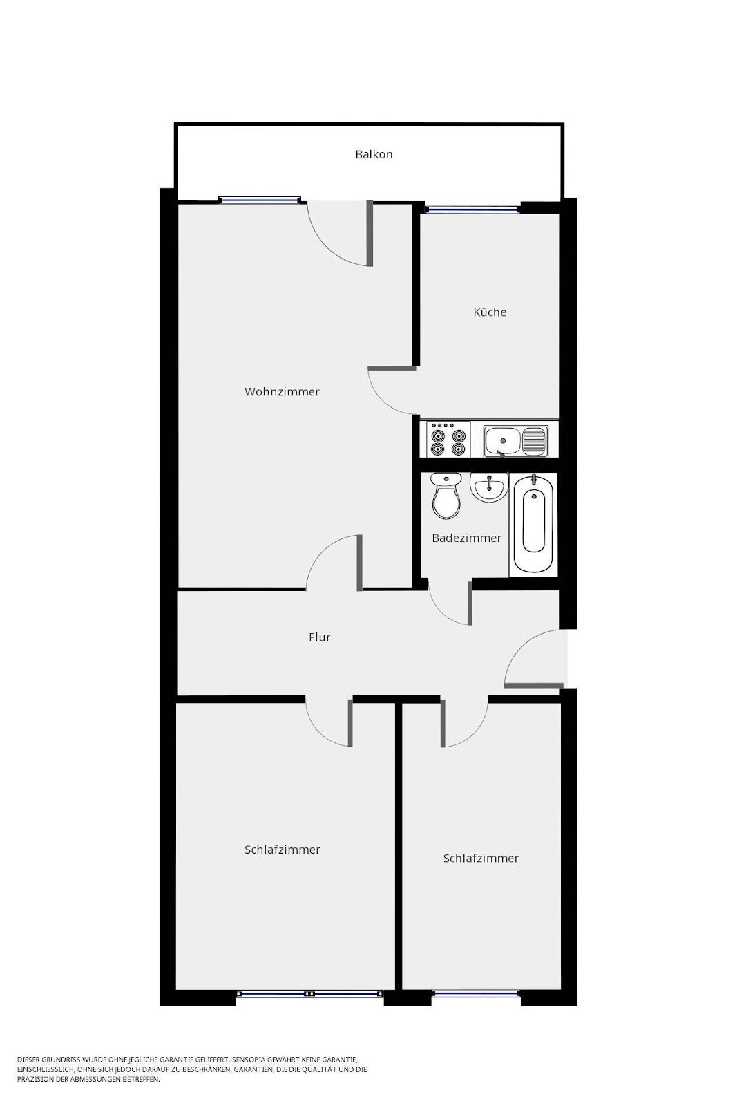
Die 3-Zimmer-Wohnung im Erdgeschoss bietet ca. 70 m² – durchdacht geschnitten und ideal für Paare, kleine Familien oder alle, die großzügigen Wohnraum mit einer praktischen Aufteilung suchen.
Ausstattung – modern, gemütlich, einziehen & wohlfühlen:
- Balkon – perfekt für den Morgenkaffee, entspannte Abende oder Ihre eigene kleine Kräuterecke
- Wohnbereich mit pflegeleichtem PVC-Bodenbelag und Raufasertapete – neutral gehalten und bereit für Ihre Einrichtungsideen
- Separate Küche mit anthrazitfarbenen Boden- und weißen Wandfliesen – ideal zum Kochen, Vorbereiten und Genießen
- Zwei Schlafzimmer – ruhig gelegen, gut geschnitten und vielseitig möblierbar
- Badezimmer mit Badewanne und Waschmaschinenanschluss – praktisch & zeitlos in Anthrazit und Weiß
- Haustiere nach Absprache möglich
- Kellerraum nach Verfügbarkeit – zusätzlicher Stauraum für alles, was nicht täglich benötigt wird
- Gemeinschaftlicher Trockenraum & Fahrradkeller – ideal für Wäsche und Zweirad
- Hausmeisterservice – zuverlässige Unterstützung rund ums Haus
- Rundum versorgt:
- 24/7 für Sie erreichbar - auch im Notfall
- Moderner Mieterservice über WhatsApp, Telefon, E-Mail und die GCP App: Kontakte, Unterlagen und Anliegen bequem online verwalten
Lage
Willkommen in Leipzig - im Stadtteil Grünau - Nord
Grünau-Nord liegt im westlichen Teil von Leipzig und gehört zum Stadtbezirk West. Der Ortsteil umfasst den ab 1981 gebauten Wohnkomplex 7 der Großsiedlung Grünau und grenzt an die Ortsteile Miltitz, Schönau, Grünau-Siedlung und Lausen-Grünau.
Einkaufsmöglichkeiten
In unmittelbarer Nähe befinden sich mehrere Discounter und Supermärkte, darunter Kaufland und zwei Discounter an der Lützner Straße. Diese bieten eine gute Versorgung für den täglichen Bedarf .
Verkehrsanbindung
-Straßenbahn: Linien 8 und 15 verbinden den Stadtteil direkt mit dem Leipziger Stadtzentrum.
-Bus: Die Linien 62, 65 und 66 gewährleisten eine gute Anbindung an benachbarte Stadtteile und das Umland.
-S-Bahn: Der S-Bahn-Haltepunkt in Grünau-Mitte ermöglicht schnelle Verbindungen in die Innenstadt und darüber hinaus .
Bildungseinrichtungen
Der Stadtteil verfügt über verschiedene Bildungseinrichtungen:
-91. Schule (Grundschule) an der Uranusstraße 1
-94. Schule (Mittelschule) am Miltitzer Weg 3
-Max-Klinger-Schule (Gymnasium) am Miltitzer Weg 2/4
Naherholung
Für Freizeit und Erholung bieten sich der Schönauer Park und der Kulkwitzer See an. Beide sind fußläufig erreichbar und laden zu Spaziergängen, Radtouren oder einfach zum Entspannen ein.
Sonstiges
Alle Informationen zur Datennutzung und Datenschutzrechten durch Grand City Property Ltd – Zweigniederlassung Deutschland finden Sie unter: grandcityproperty.de/datenschutz.
Wichtige Hinweise:
- Bitte senden Sie uns keine vertraulichen personenbezogenen Dokumente (z. B. Gehaltsabrechnungen) vor der Besichtigung zu. Sollten Sie dies dennoch tun, werden diese Dateien umgehend gelöscht.
- Der Energieausweis kann bei der Besichtigung vorgelegt werden (ausgenommen Stellplätze/Garagen).
- Die in der Anzeige verwendeten Fotos können Beispielfotos oder KI-generierte Visualisierungen (Kennzeichnung mit „virtually staged“) sein, die der besseren Veranschaulichung der Immobilie dienen und von den tatsächlichen Gegebenheiten abweichen können.
- Sämtliche Daten in diesem Exposé, einschließlich Bilder, Grundrisse und sonstige Beschreibungen wie auch Grundrissgrafiken mit Maßangaben oder Einrichtungen, dienen ausschließlich der allgemeinen Information und stellen keine verbindlichen Zusicherungen dar. Die Daten sind so gründlich wie möglich angegeben, dennoch lassen sich Fehler nicht ausschließen. Alle Angaben im Exposé sind daher unverbindlich und etwaige Änderungen vorbehalten. Wir übernehmen daher keine Gewähr für die Richtigkeit, Vollständigkeit und Aktualität der bereitgestellten Informationen. Maßgeblich sind allein die Vereinbarungen des zu schließenden Mietvertrages. Eine Haftung für fahrlässige Fehler oder Abweichungen der Angaben wird – soweit gesetzlich zulässig – ausgeschlossen.