cookie first

Wir renovieren Ihre neue 2-Zimmer-Wohnung in Prenzlau

Georg-Dreke-Ring 2, Prenzlau
 Verfügbar ab:  01.06.2026
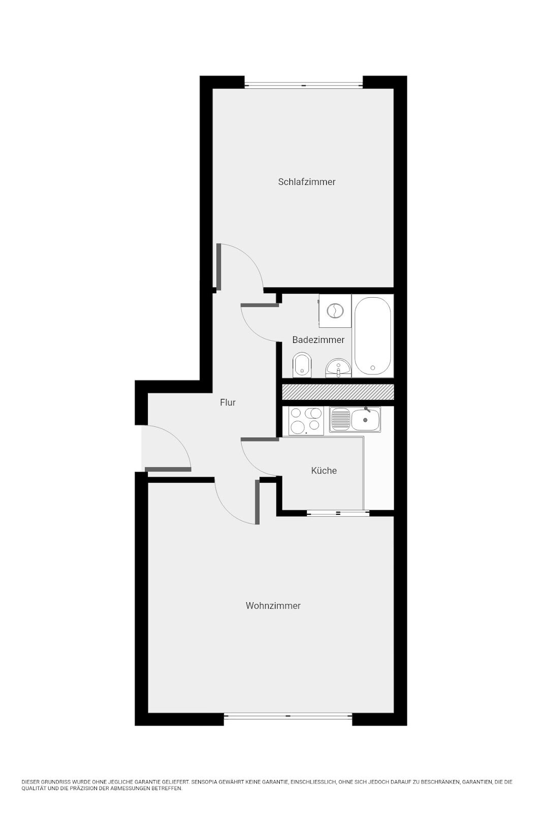
47 m2 Fläche
5. Stock
2 Zimmer
Badewanne
Keller
Online-Besichtigung

Haben Sie Fragen oder Interesse an dem Objekt?

Kontaktieren Sie Stegk für Fragen und Besichtigungen.

Kosten

  • Nebenkosten
    66,00 €
  • Heizkosten
    140,00 €
  • 483,00 €
  • 831,00 €

Weitere Informationen

  • Objekt ID
    5048/00529/001/0011
  • Baujahr
    1980
  • Zustand
    Renoviert
  • Wesentliche Energieträger
    Fernwärme
  • Gesetzliche Pflichtangaben Energieausweis
    Liegt für das Gebäude vor
  • Energieausweistyp
    Verbrauchsausweis
  • Energieverbrauchskennwert
    127.50 kWh/(m2a)

Objektbeschreibung

Das 5-stöckige Wohnhaus wurde 1980 erbaut - Im 5. Obergeschoss liegt Ihre neue Wohnung.

Die Wohnung wird derzeitig renoviert und ist ab dem 01.06.2026 verfügbar.

Lebendige Nachbarschaften und Service vor Ort: Um die optimale Pflege der Anlage kümmert sich unser Hausmeisterservice.

Sichern Sie sich Ihren privaten Parkplatz!
In vielen unserer Objekte bieten wir Ihnen die Möglichkeit, private Parkplätze anzumieten.
Jetzt anfragen und bequem parken – schnell, einfach und stressfrei! Sprechen Sie uns an!

Ausstattung

Die 2-Zimmer-Wohnung verteilt sich auf ca. 47 m²

- Laminat/PVC- Bodenbelag und Raufasertapete in den Wohnräumen
- Anthrazite Boden- und weiße Wandfliesen in der Küche
- Anthrazite Boden- und weiße Wandfliesen im Bad
- Bad mit Badewanne
- Keller je nach Kapazität
- Haustiere nach Vereinbarung
- Gemeinschaftlicher Fahrradkeller
- Hausmeisterservice
- 24/7 für Sie erreichbar - auch im Notfall
- Moderner Mieterservice über WhatsApp, Telefon, E-Mail und die GCP App: Kontakte, Unterlagen und Anliegen bequem online verwalten

Lage

Willkommen in Prenzlau - in der wunderschönen Uckermark.
In einer ruhigen Nebenstraße liegt die gepflegte Wohnanlage.
Im Umkreis von wenigen hunderten Metern befinden sich Supermärkte und Einkaufsmöglichkeiten des täglichen Bedarfs. Für die Kleinen gibt es Schulen und Kindergärten, die zu Fuß gut erreichbar sind.
Nahegelegene Haltestellen des öffentlichen Nahverkehrs gewährleisten eine gute Anbindung.
Für die Freizeitgestaltung dienen Parks und Grünanlagen in der Nähe, sowie Sportvereine in der Umgebung.

Sonstiges

Alle Informationen zur Datennutzung und Datenschutzrechten durch Grand City Property Ltd – Zweigniederlassung Deutschland finden Sie unter: grandcityproperty.de/datenschutz.

Wichtige Hinweise:

  • Bitte senden Sie uns keine vertraulichen personenbezogenen Dokumente (z. B. Gehaltsabrechnungen) vor der Besichtigung zu. Sollten Sie dies dennoch tun, werden diese Dateien umgehend gelöscht.
  • Der Energieausweis kann bei der Besichtigung vorgelegt werden (ausgenommen Stellplätze/Garagen).
  • Die in der Anzeige verwendeten Fotos können Beispielfotos oder KI-generierte Visualisierungen (Kennzeichnung mit „virtually staged“) sein, die der besseren Veranschaulichung der Immobilie dienen und von den tatsächlichen Gegebenheiten abweichen können.
  • Sämtliche Daten in diesem Exposé, einschließlich Bilder, Grundrisse und sonstige Beschreibungen wie auch Grundrissgrafiken mit Maßangaben oder Einrichtungen, dienen ausschließlich der allgemeinen Information und stellen keine verbindlichen Zusicherungen dar. Die Daten sind so gründlich wie möglich angegeben, dennoch lassen sich Fehler nicht ausschließen. Alle Angaben im Exposé sind daher unverbindlich und etwaige Änderungen vorbehalten. Wir übernehmen daher keine Gewähr für die Richtigkeit, Vollständigkeit und Aktualität der bereitgestellten Informationen. Maßgeblich sind allein die Vereinbarungen des zu schließenden Mietvertrages. Eine Haftung für fahrlässige Fehler oder Abweichungen der Angaben wird – soweit gesetzlich zulässig – ausgeschlossen.