cookie first

Helle Bürofläche zu vermieten

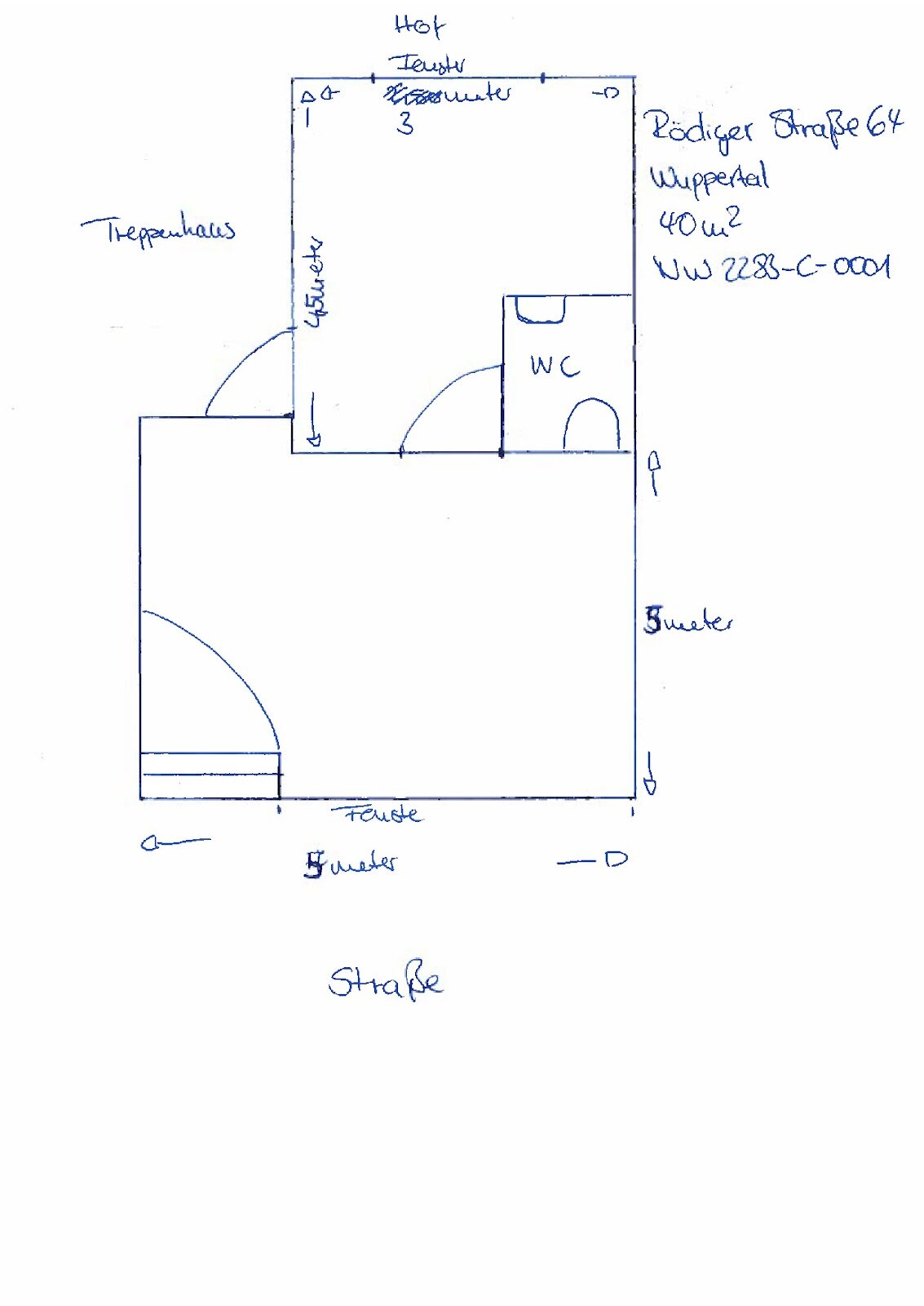
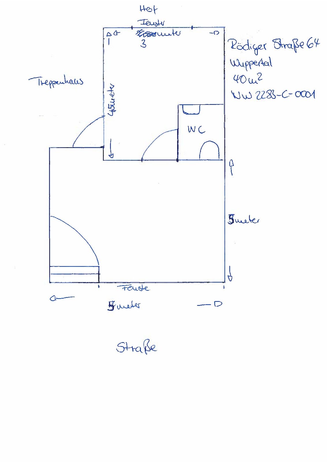
Rödiger Straße 64, Wuppertal
 Verfügbar ab:  nach Absprache
40 m2 Fläche
Erdgeschoss
Online-Besichtigung

Haben Sie Fragen oder Interesse an dem Objekt?

Kontaktieren Sie Mehmet Akbal für Fragen und Besichtigungen.

Kosten

  • Preis auf Anfrage
  • Nebenkosten
    Preis auf Anfrage
  • Heizkosten
    Heizkosten sind nicht in den Nebenkosten enthalten

Weitere Informationen

  • Objekt ID
    5070/00964/001/0001
  • Baujahr
    1900
  • Zustand
    Nach Vereinbarung
  • Wesentliche Energieträger
    Gas
  • Gesetzliche Pflichtangaben Energieausweis
    Liegt für das Gebäude vor
  • Energieausweistyp
    Energieausweistyp
  • Energieverbrauchskennwert
    Es liegen keine Informationen vor

Objektbeschreibung

Diese attraktive Bürofläche in der Rödiger Straße 64 überzeugt durch eine moderne Ausstrahlung und eine großzügige Fensterfront, die den Raum mit viel Tageslicht durchflutet. Die offene Gestaltung bietet vielfältige Nutzungsmöglichkeiten – ideal für Unternehmen, Agenturen oder Praxen, die Wert auf ein repräsentatives Arbeitsumfeld legen.

Ausstattung

-Renovierung nach Absprache
-Barrierefrei
-gute Anbindung an die ÖPNV

Lage

Die Lage überzeugt durch ihre Nähe zu wichtigen Verkehrsanbindungen und einer hervorragenden Infrastruktur. In wenigen Minuten erreicht man die Wuppertaler Innenstadt sowie die Autobahn A46, die eine schnelle Verbindung nach Düsseldorf, Köln und ins Ruhrgebiet ermöglicht. Auch der öffentliche Nahverkehr ist optimal: Bus- und Schwebebahnstationen befinden sich in direkter Umgebung. Einkaufsmöglichkeiten, Restaurants und Dienstleister sind ebenfalls fußläufig erreichbar.

Sonstiges

Alle Informationen zur Datennutzung und Datenschutzrechten durch Grand City Property Ltd – Zweigniederlassung Deutschland finden Sie unter: grandcityproperty.de/datenschutz.

Wichtige Hinweise:

  • Bitte senden Sie uns keine vertraulichen personenbezogenen Dokumente (z. B. Gehaltsabrechnungen) vor der Besichtigung zu. Sollten Sie dies dennoch tun, werden diese Dateien umgehend gelöscht.
  • Der Energieausweis kann bei der Besichtigung vorgelegt werden (ausgenommen Stellplätze/Garagen).
  • Die in der Anzeige verwendeten Fotos können Beispielfotos oder KI-generierte Visualisierungen (Kennzeichnung mit „virtually staged“) sein, die der besseren Veranschaulichung der Immobilie dienen und von den tatsächlichen Gegebenheiten abweichen können.
  • Sämtliche Daten in diesem Exposé, einschließlich Bilder, Grundrisse und sonstige Beschreibungen wie auch Grundrissgrafiken mit Maßangaben oder Einrichtungen, dienen ausschließlich der allgemeinen Information und stellen keine verbindlichen Zusicherungen dar. Die Daten sind so gründlich wie möglich angegeben, dennoch lassen sich Fehler nicht ausschließen. Alle Angaben im Exposé sind daher unverbindlich und etwaige Änderungen vorbehalten. Wir übernehmen daher keine Gewähr für die Richtigkeit, Vollständigkeit und Aktualität der bereitgestellten Informationen. Maßgeblich sind allein die Vereinbarungen des zu schließenden Mietvertrages. Eine Haftung für fahrlässige Fehler oder Abweichungen der Angaben wird – soweit gesetzlich zulässig – ausgeschlossen.